Nakonfigurujte si produkt podľa Vašich predstáv alebo potrieb
1. Šírka dverí
2. Strana dverí
3. Norma
4. Farebné variácie
5. Spoj zárubne
6. Obložkové lišty
7. Voliteľné možnosti za príplatok
8. Farba pántov a protiplechu
Regulovateľná jednokrídlová zárubňa Erkado pre reverzné dvere hrúbka steny 195-215 mm
Konštrukcia - Regulovateľná zárubňa je vyrobená z MDF dosky, pokrytá fóliou GREKO, PREMIUM, laminátom CPL s hrúbkou 0,15 mm alebo je povrchová úprava lakovaná.
Povrchová úprava
GREKO - Orech, Brest, Dub, Dub sivý, Biela, Snehobiela, Sonoma, Borovica biela, Dub stredný, Dub zlatý, Sanremo , Agát jasný
PREMIUM - Orech, Javor sivý, Dub, Kôra biela, Jaseň grafit, Biela, Betón, Smrekovec priečny, Dub prírodný
ST CPL - Dub, Dub sivý, Wenge, Borovica sivá, Biela, Cappuccino, Svetlosivá, Čierna, Námornícka modrá, Tmavozelená, Popol
LAKOVANÁ - Biela titánová UV (RAL9003)
Pri farbách CPL - Biela, Cappuccino, Svetlosivá, Čierna, Námornícka modrá, Tmavozelená, Popol - špeciálny povlak AntiFinger, ktorý redukuje nečistoty a značky po odtlačkoch prstov.
Zárubňa zahŕňa:
- Hlavný nosník (vodorovný prvok a dva zvislé prvky)
- Skryté pánty
- Tesnenie
- Sada montážnych prvkov
Plusy:
- Elegantný dizajn regulovateľnej zárubne
- Široká ponuka farieb a dekorov
Prevedenie


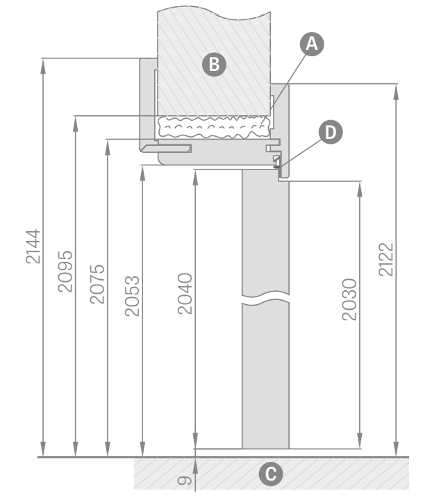
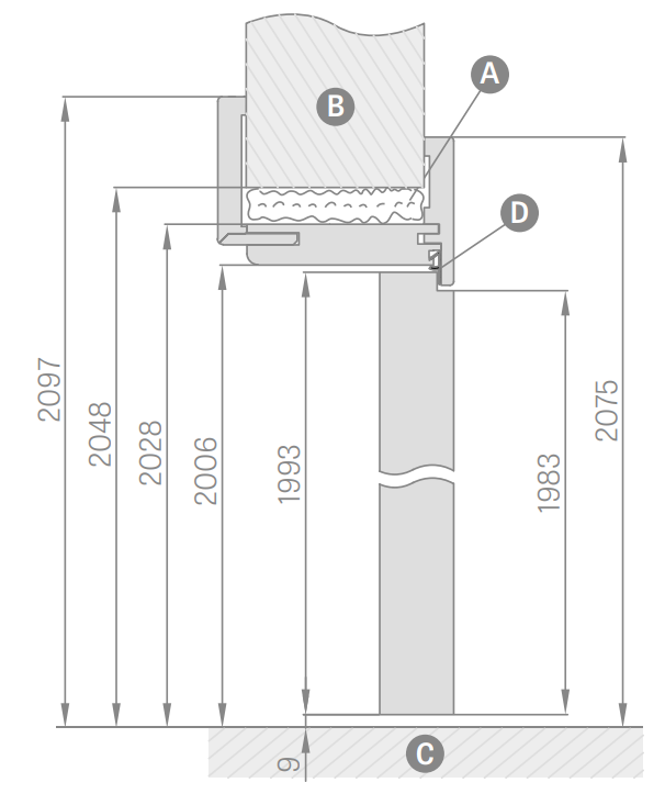
Rozpätie nastavenia reverznej zárubne

Nákres reverznej zárubne

Nákres v SK norme

Nákres v PL norme
