Nakonfigurujte si produkt podľa Vašich predstáv alebo potrieb
1. Šírka dverí
2. Strana dverí
3. Norma
4. Farebné variácie
5. Spoj zárubne
6. Obložkové lišty
7. Farba pántov a protiplechu
Regulovateľná jednokrídlová zárubňa pre bezfalcové dvere ERKADO hrúbka steny 175-195 mm
V zárubni s rozsahom 80-95 mm pero uholnika odrežte pri montáži na požadovaný rozsah.
Konštrukcia - Regulovateľná zárubňa pre bezfalcové dvere je vyrobená z MDF dosky, pokrytá fóliou FINISH, GREKO, PREMIUM, laminátom CPL s hrúbkou 0,15 mm, 0,20 mm alebo je povrchová úprava lakovaná.
Povrchová úprava
GREKO - Orech, Brest, Dub, Dub sivý, Biela, Snehobiela, Sonoma, Borovica biela, Dub stredný, Dub zlatý, Sanremo , Agát jasný
PREMIUM - Orech, Javor sivý, Dub, Kôra biela, Jaseň grafit, Biela, Betón, Smrekovec priečny, Dub prírodný
ST CPL - Dub, Dub sivý, Wenge, Borovica sivá, Biela, Cappuccino, Svetlosivá, Čierna, Námornícka modrá, Tmavozelená, Popol
CPL 0,20 mm - Biela, Popol, Antracit, Dub Retro , Dub Classic, Orech Classic
LAKOVANÁ - Biela titánová UV (RAL9003)
Pri farbách CPL - Biela, Cappuccino, Svetlosivá, Čierna, Námornícka modrá, Tmavozelená, Popol - špeciálny povlak AntiFinger, ktorý redukuje nečistoty a značky po odtlačkoch prstov.
Montáž bezfalcových dverí ERKADO
Zárubňa zahŕňa:
- Hlavný nosník (vodorovný prvok a dva zvislé prvky)
- Skryté pánty
- Tesnenie
- Sada montážnych prvkov
Plusy:
- Elegantný dizajn regulovateľnej zárubne
- Široká ponuka farieb a dekorov
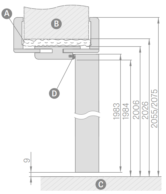
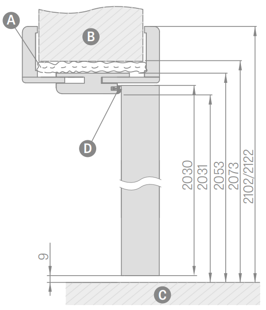
Nákres zárubne

Zárubňa v SK norme

Zárubňa v PL norme

A - pena
B - stena
C - podlaha
D - tesnenie