Nakonfigurujte si produkt podľa Vašich predstáv alebo potrieb
1. Šírka dverí
2. Strana dverí
3. Norma
4. Obložkové lišty
5. Spoj zárubne
6. Farebné variácie
Regulovateľná jednokrídlová zárubňa Erkado hrúbka steny 200-220 mm
Konštrukcia - Regulovateľná zárubňa je vyrobená z MDF dosky, pokrytá fóliou, GREKO, PREMIUM, laminátom CPL s hrúbkou 0,15 mm a 0,20 mm alebo je povrchová úprava lakovaná.
Povrchová úprava
GREKO - Orech, Brest, Dub, Dub sivý, Biela, Snehobiela, Sonoma, Borovica biela, Dub stredný, Dub zlatý, Sanremo , Agát jasný
PREMIUM - Orech, Javor sivý, Dub, Kôra biela, Jaseň grafit, Biela, Betón, Smrekovec priečny, Dub prírodný
ST CPL - Dub, Dub sivý, Wenge, Borovica sivá, Biela, Cappuccino, Svetlosivá, Čierna, Námornícka modrá, Tmavozelená, Popol
CPL 0,20 mm - Biela, Popol, Antracit, Dub Retro , Dub Classic, Orech Classic
LAKOVANÁ - Biela titánová UV (RAL9003)
Pri farbách CPL - Biela, Cappuccino, Svetlosivá, Čierna, Námornícka modrá, Tmavozelená, Popol - špeciálny povlak AntiFinger, ktorý redukuje nečistoty a značky po odtlačkoch prstov.
Montáž zárubne ERKADO
https://youtu.be/fePxnC3IFQA
Zárubňa zahŕňa:
- Hlavný nosník (vodorovný prvok a dva zvislé prvky)
- Sada pántov
- Tesnenie
- Sada montážnych prvkov
Plusy:
- Elegantný dizajn regulovateľnej zárubne
- Široká ponuka farieb a dekorov
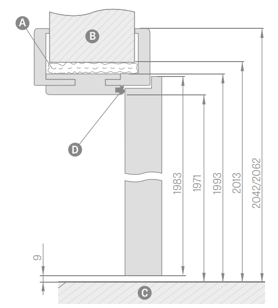
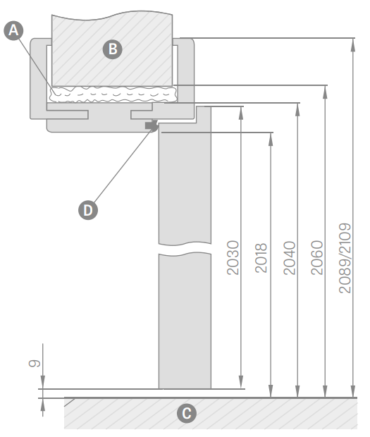
Nákres zárubne
Zárubňa v SK norme

Zárubňa v PL norme

A - pena
B - stena
C - podlaha
D - tesnenie